Att/Row/Townhouse Property

816 ELEMENT Private , Kanata

2 Bed
2 Bath
1 Parking
$498,999

Details

Property ID
X12946070
Status
For Sale (On market for 2 days)
Property Type
Att/Row/Townhouse
Style
3-Storey
Area
1100-1500 SqFt
Lot Size
21 X 48.06 Ft.
Parking Spaces
1
Garage Spaces
1
Taxes
$3,178 (2025)
Basement
None
Air Conditioning
Central Air
Heating Type
Forced Air

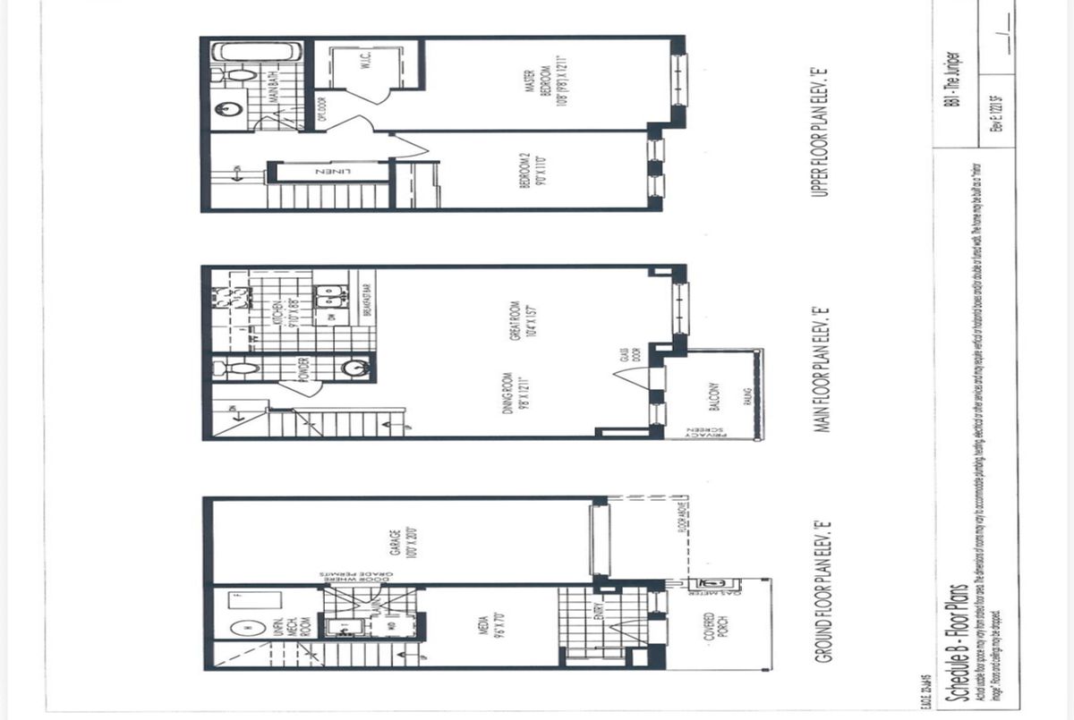
Description

IDEAL FOR YOUNG PROFESSIONALS, FIRST-TIME BUYERS OR INVESTORS! Welcome to Monahan Landing! This beautifully maintained 2-bedroom, 1.5-bath townhome offers the perfect combination of comfort, style, and low-maintenance living in one of Kanata South's most sought-after communities.Step inside to a tiled foyer that provides access to your attached garage and convenient flex space-perfect for a home office, study, or fitness nook. Upstairs, discover an inviting open-concept living area with gleaming floors, a spacious dining area, and a modern kitchen featuring stainless steel appliances, ample cabinetry, a center island, and generous counter space for meal prep or entertaining. Enjoy a SOUTH-facing, sunny private balcony just off the dining room-perfect for morning coffee or unwinding with evening sunsets. Upstairs, you'll find two generous bedrooms and a 4-piece bath. The primary suite includes a walk-in closet and plenty of natural light. Located on a quiet, family-friendly street close to parks, schools, transit, and shopping, this home is just minutes from Kanata Centrum, Tanger Outlets, and major routes 416 & 417- making commuting and errands a breeze. Designed for modern living, this home is perfect for anyone looking to enjoy the best of Kanata's south-end lifestyle. THIS HOME FEATURES: central air conditioning, an attached garage with a garage door opener, a verandah, a private balcony, and a private laneway (rare). - Association fee of $71/monthly for snow/garbage removal of a private street. **Some photos have been virtually staged. ...

Continue Reading Show Less

Amenities

Location of the Property

816 ELEMENT Private, Kanata, ON K2M 0M8

Community Sold Statistics

Ave Sold Price

Ave Days On Market

Based on last 90 days transactions for Att/Row/Townhouse Properties in the 9010 - Kanata - Emerald Meadows/Trailwest community.

Sales Representative
Office: (613) 288-1999

You like this property? Receive new, similar ones in your inbox.

We will also update you on other related information such as similar sold properties and market reports

Subscribe Now
Must be logged in to see the sold history
List Date Transaction List Price Sold/Leased Price DOM Status Transaction Date
$
per month
Principal
Down Payment
Balance at Term End

More About 816 ELEMENT Private

816 ELEMENT Private is a Residential Property located in the city of Kanata. 816 ELEMENT Private has been listed For Sale at $498,999 since Apr 01 2026. This Att/Row/Townhouse Att/Row/Townhouse has 2 bedrooms, 2 bathrooms and is 1100-1500 sqft. Situated in 9010 - Kanata - Emerald Meadows/Trailwest neighbourhood , with the nearest intersection being South on Eagleson, Left on Radiant, right on Element.

Listing Brokerage: COLDWELL BANKER SARAZEN REALTY

}